草加市遊馬町11期 GRAFARE 全1邸の物件詳細
人生に深みを与えてくれるライフスタイルを
爽快感溢れる開放感家族が一つになれる空間
情報更新日:2026年01月19日

-
-
手にするものは住まいという枠を超え
【自分らしさ】を想起させる 邸宅
憧れのマイホームに相応しい美しい外観
思い切りプライベートの時間を家族と楽しむ
自分の理想を高く完璧に答える家。
-
手にするものは住まいという枠を超え
| 最寄り駅 徒歩 住所 |
価格 | 面積 間取り |
種別 築年月 |
|---|---|---|---|
| 日暮里・舎人ライナー 『見沼代親水公園駅』 徒歩18分 埼玉県草加市遊馬町 |
3,999万円 |
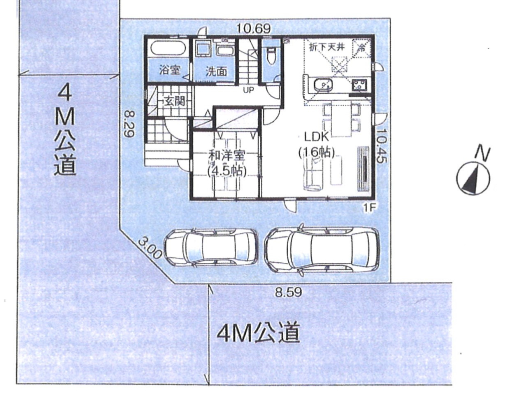
建:96.88㎡ 土:109.47㎡ 間取り:4LDK |
新築一戸建て 2025年10月 |
物件概要
※各種情報と現状に差異がある場合は、現状優先となります。


















