上尾市壱丁目東 GRAFARE 全1棟の物件詳細
~住環境と車庫2台にこだわりたい~。
陽の光と風を感じながら、健やかに暮らす毎
情報更新日:2026年01月20日

-
-
ピッタリとフィットする「丁度良い」が一番
爽快感溢れる開放感家族が一つになれる空間
その思いは純粋に明るくて風通しが良くて
住環境の良い町。
他では体験できない思いがある住みたい家。
-
ピッタリとフィットする「丁度良い」が一番
| 最寄り駅 徒歩 住所 |
価格 | 面積 間取り |
種別 築年月 |
|---|---|---|---|
| JR高崎線 『上尾駅』 バス10分 大谷中学校 停歩4分 埼玉県上尾市壱丁目 |
3,599万円 |
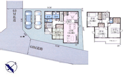
建:97.71㎡ 土:137.72㎡ 間取り:4LDK |
新築一戸建て 2025年12月 |
物件概要
※各種情報と現状に差異がある場合は、現状優先となります。

















